京王線「千歳烏山」駅徒歩16分
開放感のある全4棟の街並みを形成。延床面積100m2以上!
| 物件種別 | 新築戸建 |
|---|---|
| 所在地 | 世田谷区上祖師谷3丁目18番地16号(仮) |
| 交通 | 京王線「千歳烏山」駅徒歩16分 |
| 土地面積 | 96.46m2(約29.17坪) |
| 土地権利 | 所有権 |
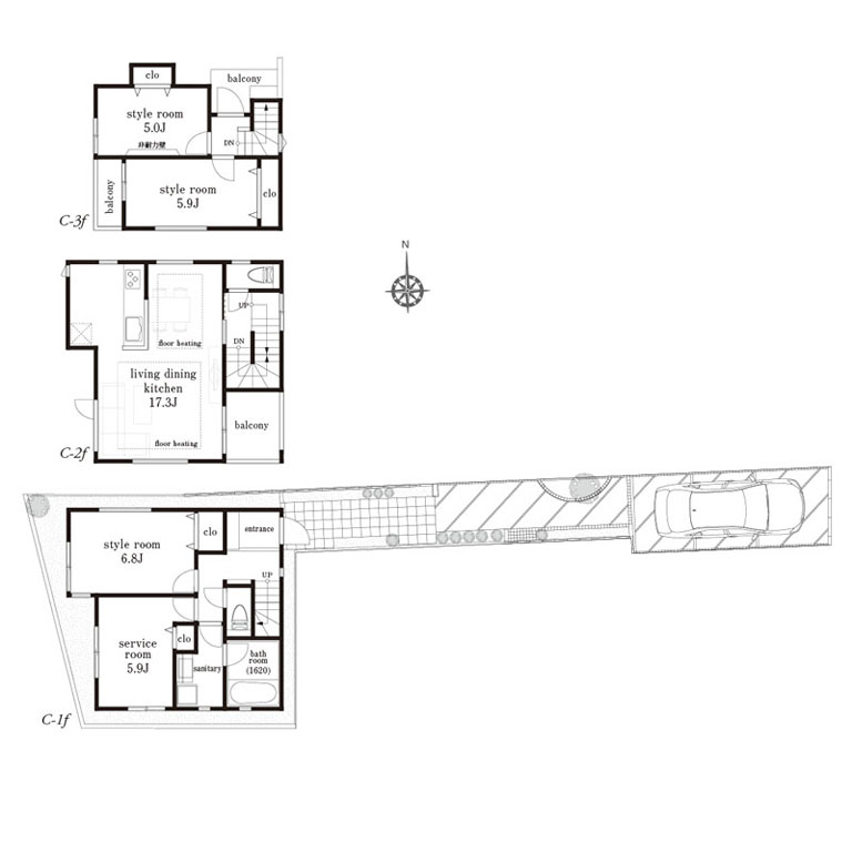
| 間取り | 3SLDK+カーポート |
| 建物構造 | 木造3階建て |
| 延床面積 | 105.68m2 |
| 用途地域 | 第一種中高層住居専用地域・第一種低層住居専用地域 |
| 建ぺい率 | 60%・40% |
| 容積率 | 200%(前面道路幅員により160%)、80% |
| 防火指定 | 準防火地域、法22条区域 |
| 高度地区 | 19m第2種高度地区、第1種高度地区 |
| 販売価格 | 6,180万円(消費税込) |
| 現況 | 2020年5月下旬完成予定 |
| 接道 | 東側約4m公道 |
| 設備 | 東京電力、都市ガス、公営水道、公共下水 |
| 取引態様 | 売主 |
| 販売図面 | PDFをダウンロード |
キッチン
収納力抜群オールスライド式食器洗乾燥機付(人造大理石カウンター・両面焼きグリル)
ユニットバス
暖房乾燥機付ユニットバス(バリアフリータイプ)
トイレ
シャワートイレ(節水機能付)※2階にタンクレストイレ&手洗い付カウンター
洗面所
スタイリッシュな三面鏡付洗面化粧台
玄関
TVモニター付ハンズフリーインターフォン
その他
リビングダイニングに温水式床暖房
全開口部にLow-eペアガラス
全居室・廊下・外構照明付(全てLED照明)
壁・体内結露を防ぎ構造体を腐朽から守る外壁通気工法
外構一式(境界塀・ポスト・植栽等)