京王井の頭「高井戸」駅徒歩8分 他
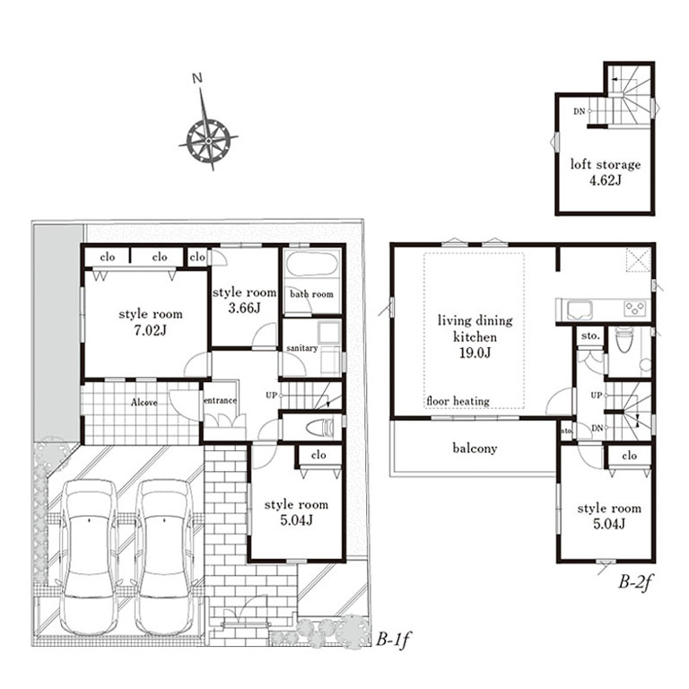
2駅利用可能。4.62帖の小屋裏収納・カーポート2台分有り。
| 物件種別 | 新築戸建 |
|---|---|
| 所在地 | 杉並区高井戸西1丁目24番6号(仮) |
| 交通 | 京王井の頭「高井戸」駅徒歩8分・「富士見ケ丘」駅徒歩6分 |
| 土地面積 | 118.09m2(約35.72坪) |
| 土地権利 | 所有権 |
| 間取り | 3SLDK+小屋裏収納+カーポート |
| 建物構造 | 木造2階建て |
| 延床面積 | 94.43m2 |
| 用途地域 | 第一種低層住居専用地域 |
| 建ぺい率 | 40% |
| 容積率 | 80% |
| 防火指定 | 準防火地域 |
| 高度地区 | 第1種高度地区 |
| 販売価格 | 新価格 8,780万円(消費税込) |
| 現況 | 2020年2月中旬完成予定 |
| 接道 | 南側約9.4m公道 |
| 設備 | 東京電力、都市ガス、公営水道、公共下水 |
| 取引態様 | 売主 |
| 販売図面 | PDFをダウンロード |
キッチン
収納力抜群オールスライド式食器洗乾燥機付
(人造大理石カウンター・両面焼きグリル・ステンレス美サイレントシンク)
ユニットバス
暖房乾燥機付ユニットバス(1618サイズ・バリアフリータイプ)
トイレ
シャワートイレ(節水機能付)※LD階にタンクレストイレ
洗面所
スタイリッシュな三面鏡付洗面化粧台(W900)
玄関
TVモニター付ハンズフリーインターフォン
その他
リビングダイニングに温水式床暖房
全開口部にLow-eペアガラス
全居室・廊下・外構照明付(全てLED照明)
壁・体内結露を防ぎ構造体を腐朽から守る外壁通気工法
外構一式(境界塀・ポスト・植栽等)